• Home
  • About Us
  • Projects
  • Services
  • Contact
Get Quote
  • Home
  • About Us
  • Projects
  • Services
  • Contact

Categories: Security Office

  • Home
  • portfolio
  • Security Office
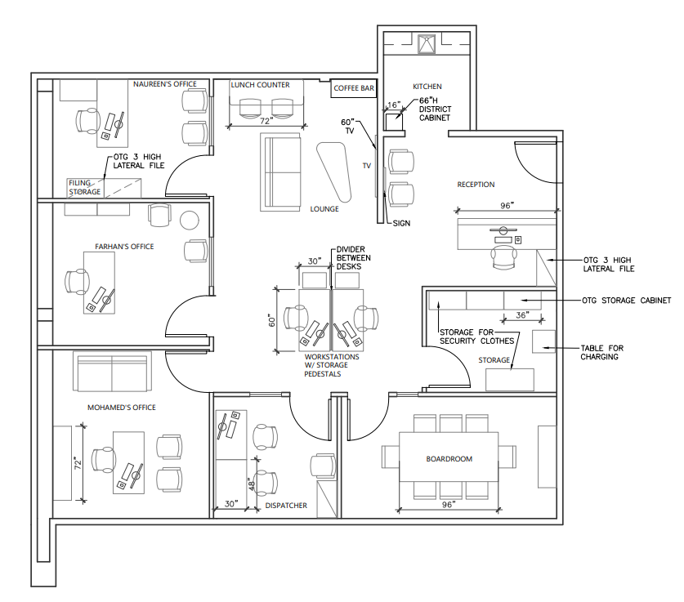
Floor Plan
365 Patrol Office Completion
3D Concept

bESPOKEbYC is a boutique Design Studio specializing in tailored environments to create your vision and bring your design to life.

Pages

  • About Us
  • Services
  • Projects
  • Contact

CONTACT US

Phone:

(403) 909 1399

Email:

 info@bespokebyc.ca

Open:

MONDAY – FRIDAY 08:00 – 17:00

OUR SERVICES

  • Architectural | Interior Design
  • Consultations
  • Bespoke Procurement
  • Custom Furniture Design
  • 1-Hour Complimentary Consultations

© Copyright 2024 – Infinix Enterprises

Pinterest Tiktok Instagram